樓盤名:百家湖國際花園138平米
百家湖國際花園138平米原始結構圖:

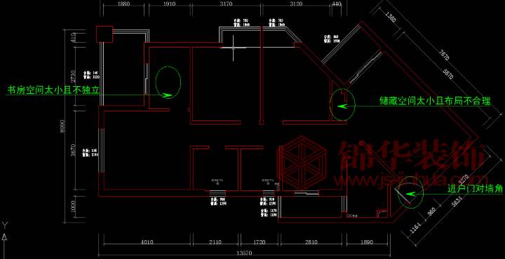
百家湖國際花園138平米原始結構分析:
戶型優點:(1)該戶型為高層點式樓,方向為朝南,因此采光很好,南邊對著百家湖,景色很好,但結構比較復雜,有待于作一些調整。戶型空間規劃要點:
(1)進戶門對著墻角,把門洞位置往右移改變原有不合理結構。
(2)四個房間的空間太小且不規則,把三角形區域改為儲藏室。
(3)書房和次臥室空間擴大,同時增強了次臥室采光,通風效果也優于原始結構。
戶型缺點: (1)進門空間不大,門背后的狹小空間很難利用。
(2)書房空間很小,幾乎沒有多少利用率。
(3)兩臥室將飄窗分成兩半,房間的工整性不是很好。
(4)客廳是個異形空間,視覺效果很不是很好。

百家湖國際花園138平米平面布置圖:

百家湖國際花園138平米平面布置分析圖:

想了解更多百家湖國際花園戶型資料么?
錦華裝飾準備了百家湖國際花園各戶型全套設計方案、工程量報價、參考效果圖、主材搭配方案.歡迎您和網絡客服取得聯系,預約來店面詳細溝通.錦華裝飾,設計專家!.
江蘇家裝示范品牌
代表地區優秀設計聲音
集25年工程管理經驗之大成
省時、省力更省心
| 走進錦華 | 設計團隊 | 作品列表 | 戶型解析 | 裝修百科 |
關注錦華公眾號
|
瀏覽手機官網 |
全國熱線 025 86550815 |
||||||||||
| 新聞列表 | 錦華文化 | 堂杰國際設計 | 1865旗艦店 | 極簡 | 中古 | 秦淮金茂府 | 常見問題 | ||||||||||
| 全國分公司 | 錦華招聘 | 河西旗艦店 | 鼓北旗艦店 | 法式 | |||||||||||||
| 錦華簡介 | 聯系我們 | 城東旗艦店 | 江寧旗艦店 | 歐式古典 | 北歐 | 中交錦方 | |||||||||||
| 資質榮譽 | 法律聲明 | 江北旗艦店 | 江浦店 | 美式田園 | 新古典 | 溧水玖宸府 | |||||||||||